Budapest, XI.kerület
Ingatlan adatai
Hivatkozási szám: 6289399
Részletes leírás
A nyugalom szigete a város szívéhez közel” – különleges otthon Sasad zöldövezetében
Ha olyan otthont keresel, ahol a nyugalom nem luxus, hanem alapélmény, ez a kivételes ingatlan a XI. kerület zöldövezetében épp Neked szól. Itt a madárcsicsergés a reggeli rutin része, miközben a város legfontosabb pontjai mégis könnyen elérhetők. Tágas terek, praktikus elrendezés, gondosan karbantartott környezet – ez nem csak egy lakás, hanem egy valódi otthon lehetősége.
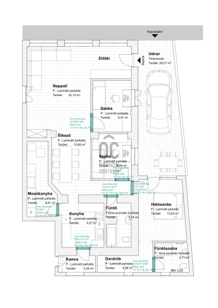
Ez a remek elosztású lakás kiváló választás családoknak vagy azoknak, akik tágas, kényelmes otthonra vágynak Budapest egyik legkeresettebb zöldövezeti részén.
A lakás központi része a nagy nappali, amelyhez egy étkező is kapcsolódik – ideális családi együttlétekhez vagy baráti vendéglátáshoz.
A három különnyíló hálószoba biztosítja a nyugodt pihenés lehetőségét minden családtag számára.
A lakásban két fürdőszoba található, így a reggeli készülődés is gördülékenyen zajlik, míg a külön mosókonyha praktikus megoldás a háztartási feladatok kényelmes elvégzéséhez.
Az ingatlanhoz tartozik egy elektromos kapuval zárható, nyitott garázsbeálló, amely biztonságos és kényelmes parkolást biztosít. Emellett közvetlenül a lakás előtt is van lehetőség egy autó elhelyezésére, így akár két jármű is könnyedén megoldható. A környéken az utcai parkolás ingyenes, ami ritka előny Budapesten.
A homlokzati falakon kívülről 12 cm EPS hőszigetelés található a belső oldalon, mivel a homlokzati falak gipszkarton előtétfalakkal vannak ellátva 5 cm gyapotszigeteléssel. Így összesen 17 cm szigeteléssel rendelkeznek a homlokzati falak.
A tetőrétegrendben a hátsó hozzáépítéseknél ( Master bedroom, gardrobe, kamra) 20 cm gyapot szigetelés került elhelyezésre, az első hozzáépítésnél ( előtér, nappali) 20 cm gyapot szigetelés és 10 cm PIR hab töltetű szendvicspanel. Ezenkívül a főépület alatt található álmennyezeteknél 5 cm gyapot hangszigetelés valósult meg.
A padlóban 5+5 Cm EPS lépésálló szigetelés került a padlófűtés alá.
A hozzáépítésekre teljesen új tetőszerkezet került zaj szigetelt antracit színű trapézlemez fedéssel.
Bevásárlás és szolgáltatások a közelben
A környék kiválóan ellátott a mindennapi élethez szükséges szolgáltatásokkal és bevásárlási lehetőségekkel. Néhány percnyi autóútra vagy kényelmes sétatávolságra elérhetők:
CBA, Aldi, Lidl – a gyors napi bevásárlásokhoz
MOM Park és Hegyvidék Bevásárlóközpont – prémium üzletek, éttermek, kávézók, gyógyszertár, drogéria, fitneszterem
Savoya Park – hipermarketek
Pékségek, zöldségesek, patika és posta – a környéken több kisebb üzlet és szolgáltató működik, amik gyalogosan is megközelíthetők
Orvosi rendelők, óvodák, iskolák – kiváló intézményi háttér a család minden tagjának
Kiváló közlekedés – gyors elérés a belvárosba
A tömegközlekedés jól szervezett, így akár autó nélkül is könnyedén elérhetők a város főbb pontjai:
8E gyorsbusz – közvetlen, gyors kapcsolat a belvárossal (Ferenciek tere, Astoria, Blaha Lujza tér)
53-as és 139-es busz – eljutás Kelenföld vasútállomásra, M4 metróhoz
59-es és 61-es villamos – kényelmes alternatíva a Széll Kálmán tér és a Déli pályaudvar irányába
M1/M7 autópálya és Budaörsi út – autóval néhány perc alatt elérhető, így vidéki vagy agglomerációs utazáshoz is ideális kiindulópont
Ha olyan otthont keresel, ahol a nyugalom nem luxus, hanem alapélmény, ez a kivételes ingatlan a XI. kerület zöldövezetében épp Neked szól. Itt a madárcsicsergés a reggeli rutin része, miközben a város legfontosabb pontjai mégis könnyen elérhetők. Tágas terek, praktikus elrendezés, gondosan karbantartott környezet – ez nem csak egy lakás, hanem egy valódi otthon lehetősége.
Ez a remek elosztású lakás kiváló választás családoknak vagy azoknak, akik tágas, kényelmes otthonra vágynak Budapest egyik legkeresettebb zöldövezeti részén.
A lakás központi része a nagy nappali, amelyhez egy étkező is kapcsolódik – ideális családi együttlétekhez vagy baráti vendéglátáshoz.
A három különnyíló hálószoba biztosítja a nyugodt pihenés lehetőségét minden családtag számára.
A lakásban két fürdőszoba található, így a reggeli készülődés is gördülékenyen zajlik, míg a külön mosókonyha praktikus megoldás a háztartási feladatok kényelmes elvégzéséhez.
Az ingatlanhoz tartozik egy elektromos kapuval zárható, nyitott garázsbeálló, amely biztonságos és kényelmes parkolást biztosít. Emellett közvetlenül a lakás előtt is van lehetőség egy autó elhelyezésére, így akár két jármű is könnyedén megoldható. A környéken az utcai parkolás ingyenes, ami ritka előny Budapesten.
A homlokzati falakon kívülről 12 cm EPS hőszigetelés található a belső oldalon, mivel a homlokzati falak gipszkarton előtétfalakkal vannak ellátva 5 cm gyapotszigeteléssel. Így összesen 17 cm szigeteléssel rendelkeznek a homlokzati falak.
A tetőrétegrendben a hátsó hozzáépítéseknél ( Master bedroom, gardrobe, kamra) 20 cm gyapot szigetelés került elhelyezésre, az első hozzáépítésnél ( előtér, nappali) 20 cm gyapot szigetelés és 10 cm PIR hab töltetű szendvicspanel. Ezenkívül a főépület alatt található álmennyezeteknél 5 cm gyapot hangszigetelés valósult meg.
A padlóban 5+5 Cm EPS lépésálló szigetelés került a padlófűtés alá.
A hozzáépítésekre teljesen új tetőszerkezet került zaj szigetelt antracit színű trapézlemez fedéssel.
Bevásárlás és szolgáltatások a közelben
A környék kiválóan ellátott a mindennapi élethez szükséges szolgáltatásokkal és bevásárlási lehetőségekkel. Néhány percnyi autóútra vagy kényelmes sétatávolságra elérhetők:
CBA, Aldi, Lidl – a gyors napi bevásárlásokhoz
MOM Park és Hegyvidék Bevásárlóközpont – prémium üzletek, éttermek, kávézók, gyógyszertár, drogéria, fitneszterem
Savoya Park – hipermarketek
Pékségek, zöldségesek, patika és posta – a környéken több kisebb üzlet és szolgáltató működik, amik gyalogosan is megközelíthetők
Orvosi rendelők, óvodák, iskolák – kiváló intézményi háttér a család minden tagjának
Kiváló közlekedés – gyors elérés a belvárosba
A tömegközlekedés jól szervezett, így akár autó nélkül is könnyedén elérhetők a város főbb pontjai:
8E gyorsbusz – közvetlen, gyors kapcsolat a belvárossal (Ferenciek tere, Astoria, Blaha Lujza tér)
53-as és 139-es busz – eljutás Kelenföld vasútállomásra, M4 metróhoz
59-es és 61-es villamos – kényelmes alternatíva a Széll Kálmán tér és a Déli pályaudvar irányába
M1/M7 autópálya és Budaörsi út – autóval néhány perc alatt elérhető, így vidéki vagy agglomerációs utazáshoz is ideális kiindulópont
Hirdető adatai



